catálogoarquitectura

Catálogo de productos arquitectónicos para la especificación

Revestimientos M | Hunter Douglas

Encargado  3  46be9873 1688 4c1d ae4e afa69d09b7d1

Escríbele a Hunter Douglas con copia a tu mail

Contactarás con Ayllen Cabello

Contactar

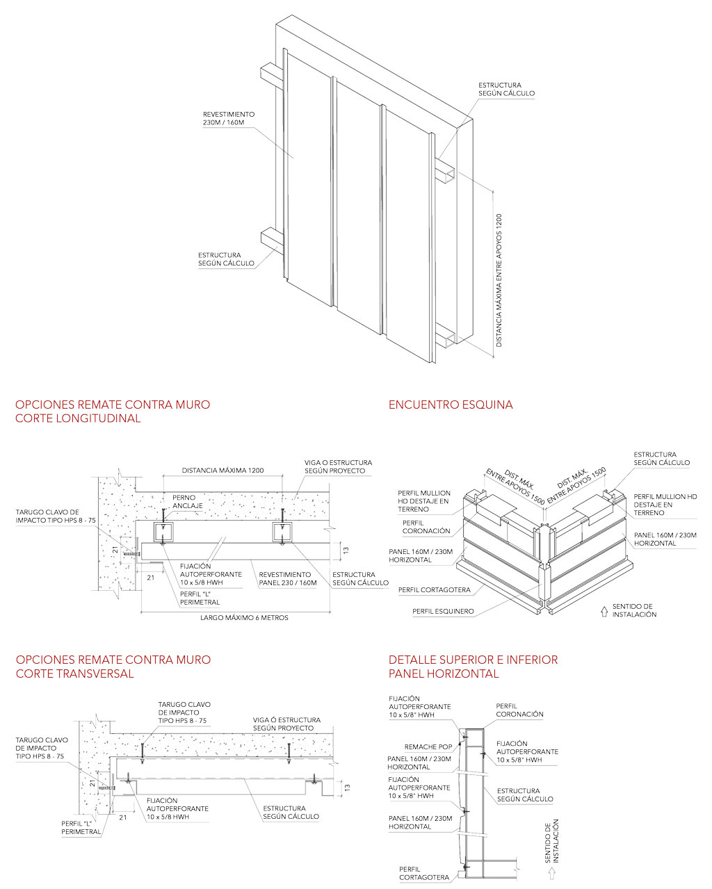
Los paneles 160 M y 230 M de Hunter Douglas, tienen un diseño versátil, apto para ser usado como cielo (especialmente marquesinas) y revestimiento, tanto interior como exterior. Estos paneles se caracterizan por tener un perfil forrado por un cuerpo central y dos alas de apoyo. Se fabrican anchos de 160 y 230 mm. Los paneles pueden instalarse verticales, horizontales o diagonales

Descripción Técnica

  • Colores: más de 100 colores estándar y especiales a pedido, Mineralgrains y Woodgrains 
  • Terminación: lisa 
  • Usos: revestimientos y cielos 
  • Largos: según requerimientos del proyecto, se recomienda no sobrepasar los 6 metros 
  • Otros materiales disponibles: acero corten, aluminio, cobre y zinc

Instalación

 

Visita todos los productos de Hunter Douglas:

En Catálogo Arquitectura

Ver todos los productos

Comparte esta publicación con un colega

Recibirás una copia en tu correo

Compartir producto
Encargado  3  46be9873 1688 4c1d ae4e afa69d09b7d1

Escríbele a Hunter Douglas con copia a tu mail

Contactarás con Ayllen Cabello

Descargas

Categorías asociadas

Aviso publicitario

Suscríbete al News de Catálogo Arquitectura

¡Recibe lo último en materiales, eventos, promociones y descuentos!