La fachada Timberline de Hunter Douglas tiene la particularidad de ofrecer una terminación lisa con pequeñas canterías entre los paneles similar a un triangulo de madera, prestándose esto para diversos usos, incluso en aplicaciones residenciales. Su aspecto regular y plano es particularmente útil donde se requiera, además es liviano y acústico (opción panel perforado con tela acústica).
Especificaciones técnicas
- Material: Aluzinc
- Espesor: 0,5mm.
- Colores: Más de 100 colores estándar y especiales a pedido
- Terminación: Lisa o perforada, woodgrains, mineralgrains, woodlines
- Usos: Revestimientos
- Largos: Se recomienda no pasar los 6 metros
- Otros materiales: Alumino, cobre y zinc
| Material | Espesor | Paso | Peso | Rendimiento |
| Aluzinc | 0,5 | 90 | 5,77 | 11,1 |
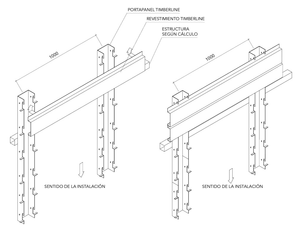
Montaje
Los paneles Timberline de Hunter Douglas se fijan al riel portapanel por ajuste firme a presión y no requiere de otros elementos de sujeción. Son fáciles de instalar.
Instalación






