catálogoarquitectura

Catálogo de productos arquitectónicos para la especificación

Fachada Piramid | Hunter Douglas

Encargado  3  46be9873 1688 4c1d ae4e afa69d09b7d1

Escríbele a Hunter Douglas con copia a tu mail

Contactarás con Ayllen Cabello

Contactar

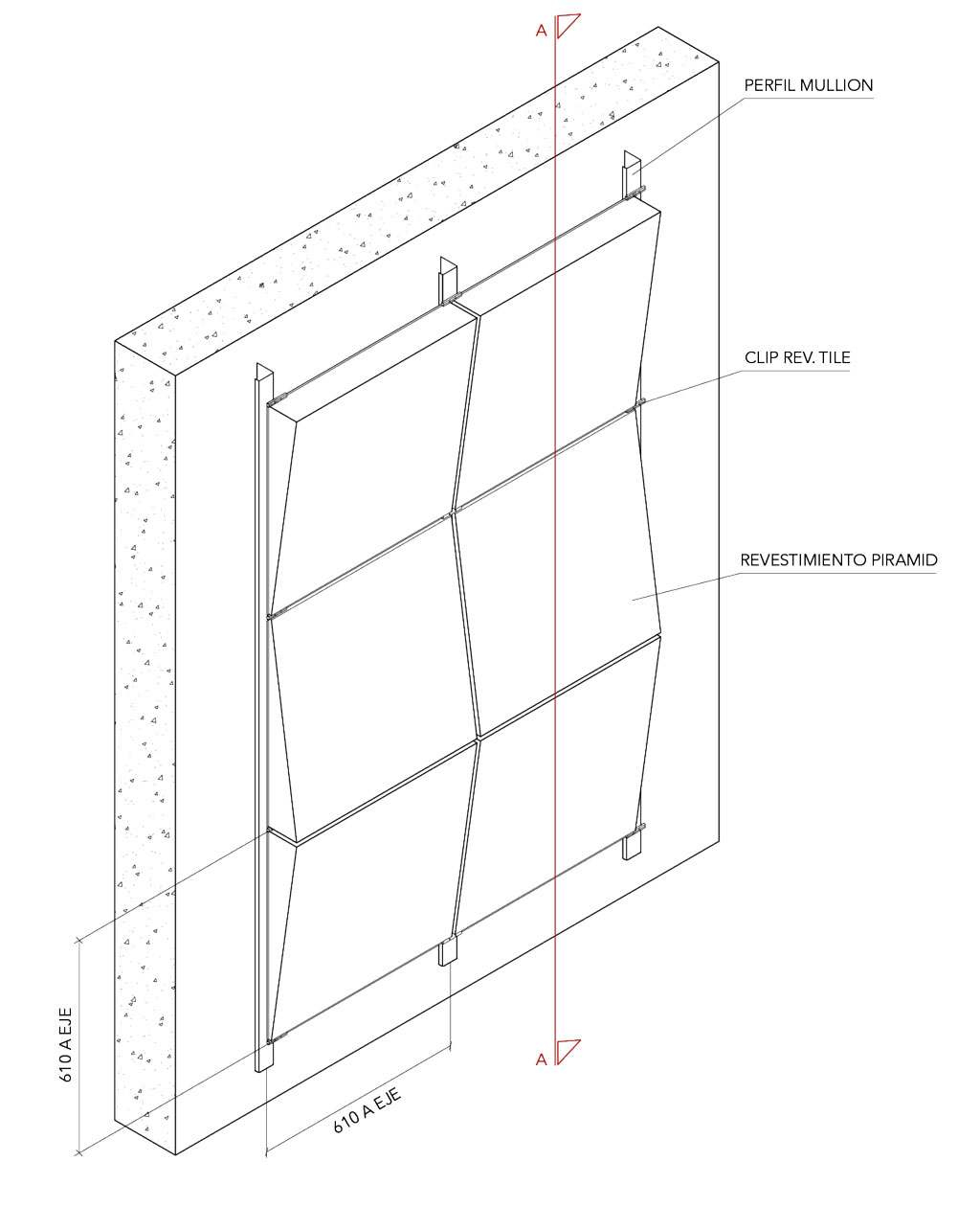
El revestimiento Piramid de Hunter Douglas, es un panel de geometría tridimensional. Con este producto es posible dar vida a las fachadas y así entregar un estilo único, ya que al ser tridimensional su lectura no es lineal. Cada bandeja es independiente siendo posible rotarla en cualquiera de las cuatro direcciones e instalar una fachada sin un patrón determinado. Además combinando distintos colores se puede lograr un atractivo efecto visual.

Descripción Técnica

  • Colores: más de 100 colores estándar y especiales a pedido, Woodgrains y Mineralgrains
  • Terminación: lisa 
  • Usos: revestimientos 
  • Otros materiales: acero corten, aluminio, cobre y zinc

 

Instalación

 

 

Visita todos los productos de Hunter Douglas:

En Catálogo Arquitectura

Ver todos los productos

Comparte esta publicación con un colega

Recibirás una copia en tu correo

Compartir producto
Encargado  3  46be9873 1688 4c1d ae4e afa69d09b7d1

Escríbele a Hunter Douglas con copia a tu mail

Contactarás con Ayllen Cabello

Descargas

Categorías asociadas

Aviso publicitario

Suscríbete al News de Catálogo Arquitectura

¡Recibe lo último en materiales, eventos, promociones y descuentos!