catálogoarquitectura

Catálogo de productos arquitectónicos para la especificación

Cielo Metálico Baffle | Hunter Douglas

Encargado  3  46be9873 1688 4c1d ae4e afa69d09b7d1

Escríbele a Hunter Douglas con copia a tu mail

Contactarás con Ayllen Cabello

Contactar

 

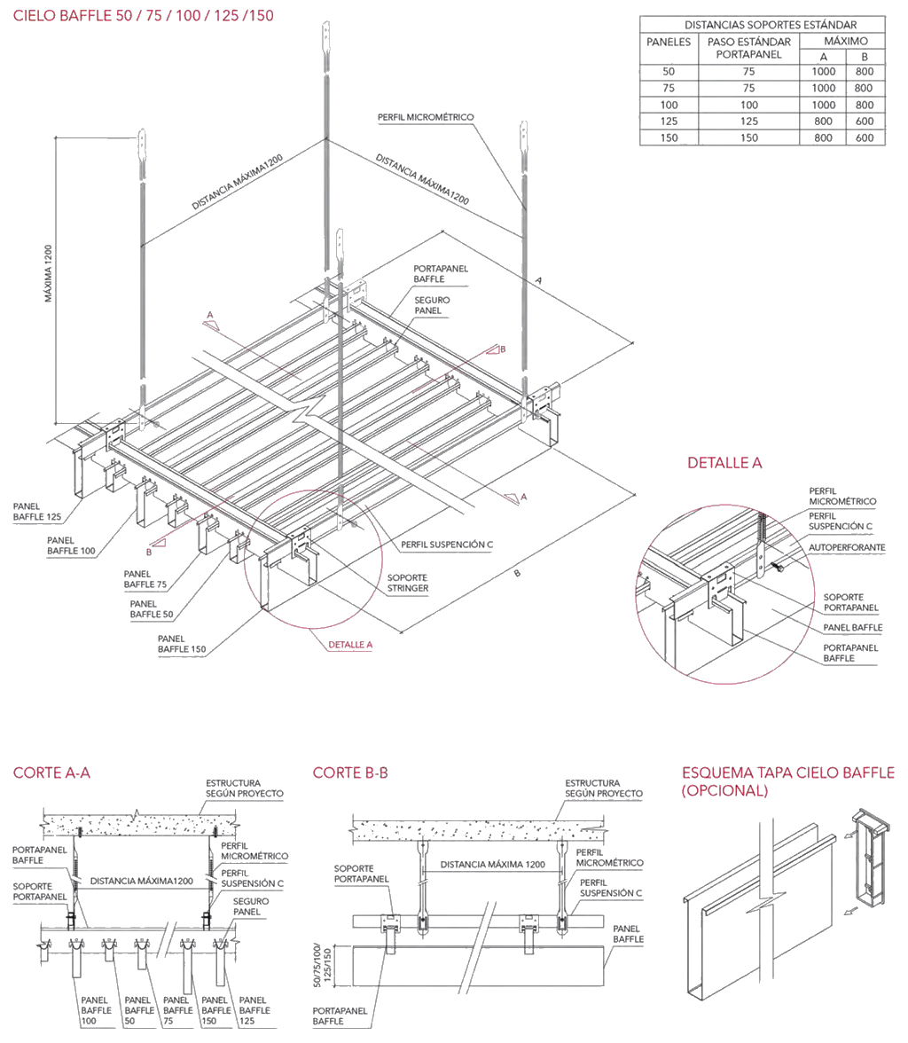
El Cielo Baffle de Hunter Douglas es un cielo lineal que se instala uno al lado del otro mediante un portapanel, variando su aspecto y separación de acuerdo al paso requerido. Está formado por paneles angostos, de sección rectangular y bordes doblados en ángulo recto, que presentan un aspecto regular, estilizado y volumétrico que asemeja un listoneado.

Su aplicación en cielos interiores, atribuye a los espacios un efecto de fragmentación sin perder continuidad. A distancia se comporta como un manto que cubre el cielo entre resaltos, pero al apreciarlo en detención permite ver la separación entre paneles. Un producto ideal para recintos públicos o comerciales que requieran de un fácil acceso a las instalaciones.

Este producto contribuye a la Certificación LEED V4.

 

Descripción Técnica

Cielo metalico Baffle - Hunter Douglas

 

 

 

 


Instalación y Montaje
 

Cielo metálico Baffle - Hunter Douglas

 

Su instalación es simple y rapida, pues cada panel se fija solidamente con un sistema de traba de presión a un riel portapanel que se cuelga a la estructura, permitiendo con esto desmontar los paneles en forma independiente y sin daño alguno para poder revisar las instalaciones cubiertas por el cielo.

 

Cielo Metálico Baffle - Hunter Douglas

Cielo metalico Baffle - Hunter Douglas

 

 

 

Visita todos los productos de Hunter Douglas:

En Catálogo Arquitectura

Ver todos los productos

Comparte esta publicación con un colega

Recibirás una copia en tu correo

Compartir producto
Encargado  3  46be9873 1688 4c1d ae4e afa69d09b7d1

Escríbele a Hunter Douglas con copia a tu mail

Contactarás con Ayllen Cabello

Descargas

Categorías asociadas

Aviso publicitario

Suscríbete al News de Catálogo Arquitectura

¡Recibe lo último en materiales, eventos, promociones y descuentos!